ویلای رو به درون
اطلاعات پروژه
- مدیر پروژه:مهیارجمشیدی
- سفارش دهنده:خصوصی
- نوع:وبلا
- موقعیت:البرز، ایران
- وضعیت:در حال ساخت
- دستیار طراح:بهاره پزشکی
- تیم اجرا:مازیار جمشیدی، سعید بخشی
- ارائه:زهرا اردلانی فر، الهام فرقانی
- مساحت:630 مترمربع
- سال:1400
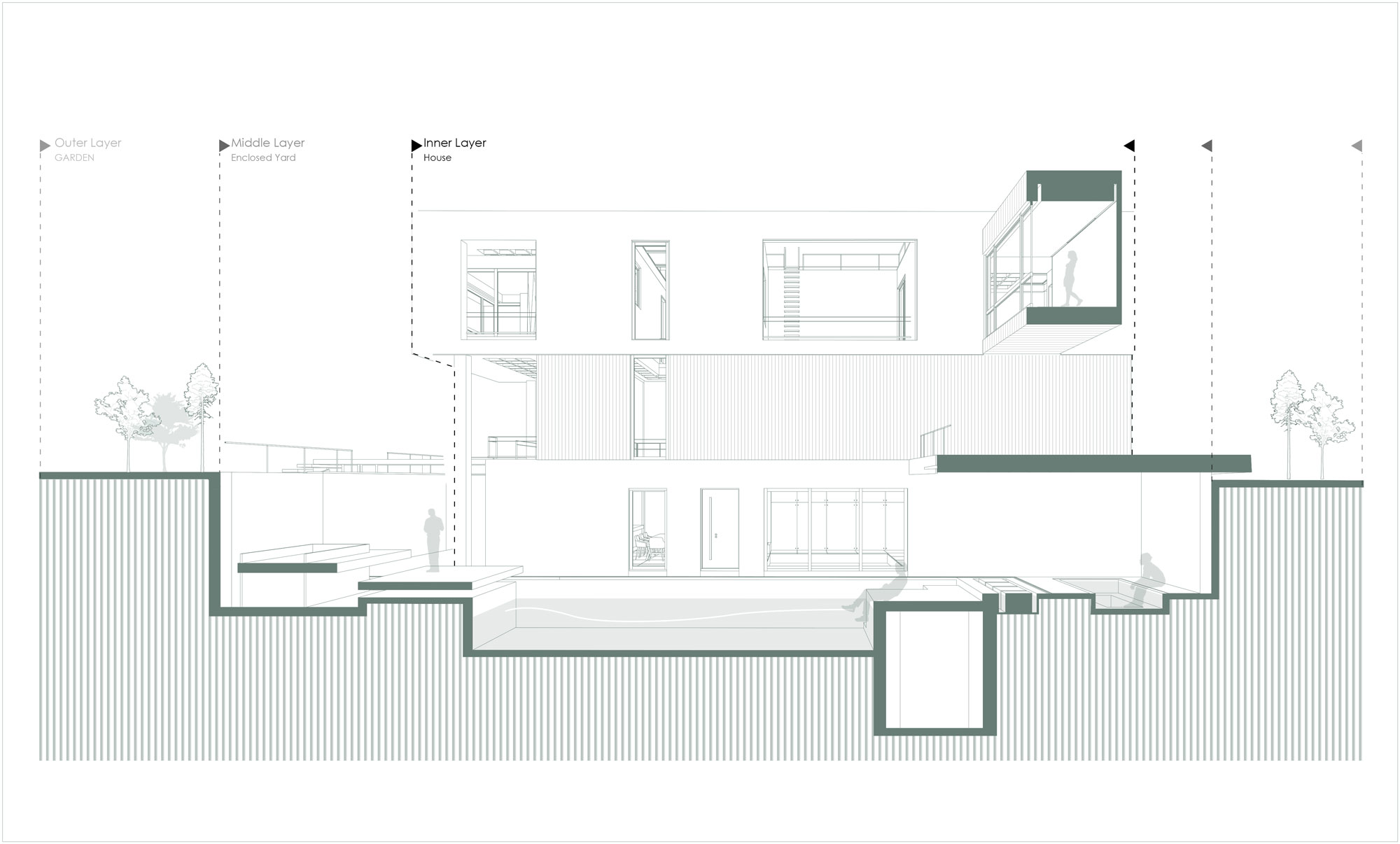
بستر احداث ویلا در محدوده بلوار دشت بهشت محمدشهر بر اساس طرح تفصیلی و قوانین صدور پروانه شهرداری مربوط، به باغ ویلا (10% ساخت در سطح اشغال) اختصاص یافته است اما در همسایگی این خیابان ها ساختمان هایی بلند مرتبه همانند نگهبانانی ترسناک بر شرح حال زندگی درون این ویلاها نظاره گرند. این امر در مواجهه اول ما با پروژه، تأثیری پر رنگ داشت کما اینکه در همان برخورد اول سودای به وجود آمدن یک حجاب سکونتی و دستیابی به محرمیتی برای استفاده کنندگان ویلا را در سر پروراندیم.
گودال باغچه به عنوان یک کهن الگو در معماری پیشین ایران به عنوان الگویی محرمیت ساز و پاسخ گو به اقلیم، عمومأ در مناطق گرم و خشک ایران (فلات مرکزی) استفاده می شد. این آرکی تایپ می تواند پلی برای عبور از مشکلات موجود بستر و پاسخی به خواستگاه رفتار دو قطبی فرهنگ امروز اجتماع ما باشد.

ما در پی ایجاد اتفاقی بزرگتر بودیم. یک تجربه زیستی جدید .تجربه حیات درون خاک.
لایه های زیر این خاک از منظر بیولوژیکی رفتاری متفاوت با سطح روی خاک دارند، (رطوبت نسبی بیشتر و تأثیرپذیری کمتری نسبت به عوامل جوی) هر چه به عمق بیشتری نفوذ کنیم به تضاد بیشتری از باب اتمسفر فضایی و شرایط خاص اقلیمی می رسیم.

ایده اصلی این پروژه احداث گودال باغی در مقیاسی متقاوت از باغچه، در انتهای این باغ 2000 متری بود.
متقاعد کردن کارفرما برای اینکه باغ مسطح و زیبایش باید همانند یک کیک برش بخورد، در زیر زمین فعالیت های متعدد اجرایی صورت پذیرد و در نهایت برای تجربه اتفاقات اصلی فضایی این ویلا می بایستی به طبقه زیرزمین رفت، امری غیرممکن به نظر می رسد.









اما این ایده جلوه حقیقی به خود گرفت زیرا تجربه متفاوت القا شده از این فضا، رویکرد جذاب فرهنگ گرا و مواجهه درست آن با بستر و همسایگی ها جملگی منجر به آن می شد تا مردمان این خانه بتوانند راحت در حیاط هایشان، خودشان باشند و در فضای کالبدی آن کیفیت صمیمی تری را پیدا کنند.



از نظر ما معماری باید تلاشی در جهت تعالی فرهنگ موجود بستر و مواجهه منطقی با text و context پروژه باشد.
ایده این گودال عظیم، با 3200 متر مکعب خاکبرداری و حجم زیاد بتن ریزی به ظرفیت فضامندی رسید تا طعم متفاوتی از زندگی را در این ویلا به ارمغان آورد.
لکه های اصلی حیات در عرصه های عمومی تر این خانه در مجاورت این حیاط و استخرش شکل گرفته اند که ظرفیت تعامل و هم افزایی ساکنین خانه را به حداکثر برساند.
کالبد کلی حجم میل به خودنمایی ندارد، پایین نشستن این حجم از تواضع این خانه است.
این امر منجر به آن می شود که فرد ناظر پس از ورود به عرصه باغ، خیال می کند با یک بنای دو طبقه عادی مواجه است. اما چند قدم بیشتر طول نمی کشد تا با یک جهان متفاوت در زیر پاهایش مواجه شود و دریابد که داستان این خانه آغاز شده است
هم زمان که فرد از روی پل گام بر می دارد تا به ویلا برسد، بر روی این حیاط راه می رود و به درک، تعامل بیشتری با آن می رسد.






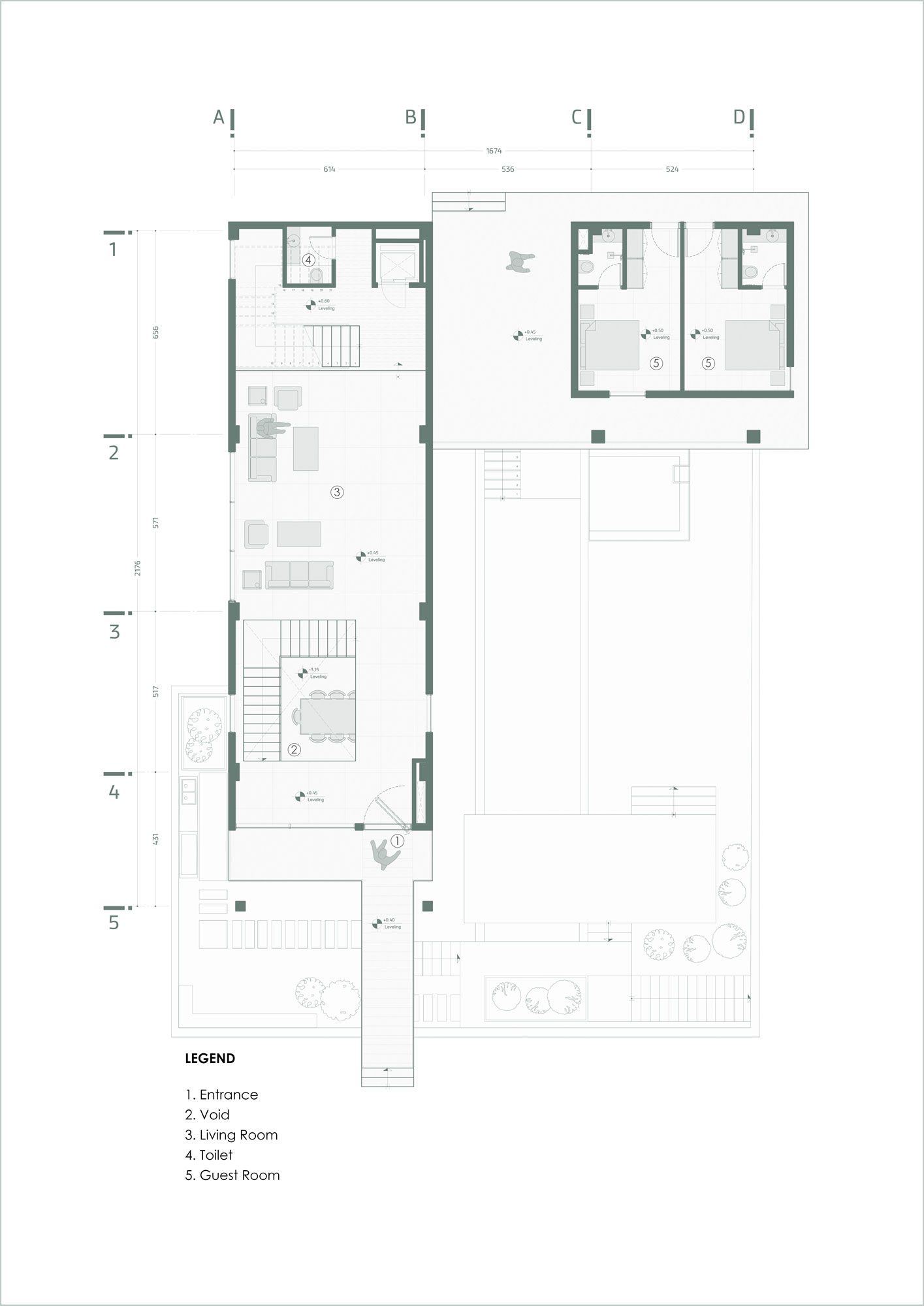
در طبقه هم تراز با حیاط، رویکرد ویلا عمومی تر است که با لهجه ای برون گرا تر یک سالن مسطح را ارائه می دهد که در جداره مرز مشترکی با حیاط گودال ندارد و به حیاط پیرامونی و هم سطح در جبهه غربی باغ گشایش دارد. در مرتبه آخر این خانه، انفصالی ما بین لکه ها به وجود می آید که سوئیت های استراحت ساکنین را تشکیل می دهد.
این انفصال در تلاش برای تفکیک فضایی بیشتر سوئیت والدین و فرزندانشان است که از طریق چند پل در فضای باز و سرپوشیده در ایستگاه های فضایی مشخصی به هم می رسند.


این مفصل، یک حیاط داخلی در طبقه اول ویلاست که مکانی برای هم افزایی بخش خصوصی تر این خانه است.
در این پروژه تلاش در جهت برپایی کیفیت های متفاوتی تجربه زیستی با استفاده از ایجاد فضاهای مختلفی در عرصه های مختلف (باز_نیمه باز_بسته) صورت گرفته است. به طوری که در هر نقطه این خانه تجربه متفاوتی از طعم حیات در دسترس است. پروژه با افزایش ظرفیت پویایی خود از طریق گشت و گذار روی پل ها و رسیدن به ایستگاه های فضایی منجر به افزایش نشاط و پویایی ساکنین خود می گردد. ایستگاه هایی که با برنامه قبلی به صورت پی در پی مسیر حرکتی افراد را فعال می کنند.
فضاهای نساخت عامل اصلی امتداد فضایی و گستردگی دیداری درونی این ویلا می باشند که توأمان با پله ها در فضا رشد می کنند و سیر و سلوک جذابی را برای کاربران خود به وجود می آورند.
موقعیت پروژه
آدرس:
البرز، ایران





























